介護/車いす利用者に最適なホームエレベーター

お問い合わせ

横浜市港南区の低価格家庭用ホームエレベーター製造販売 三友エレベータ株式会社

製品紹介

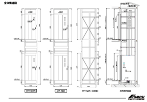
車椅子も乗れる MYT-120N

■車椅子に対応でき、省エネタイプのホームエレベーター・小型エレベーター

1300mm×1350mmのスペースで設置でき、通常サイズの自操式車椅子と介護の方も同乗できるタイプ

  • 車椅子対応 MYT-120N型

    車椅子対応 MYT-120N型  アイボリー

  • 車椅子対応 MYT-120N型 アケビ色

    車椅子対応 MYT-120N型 アケビ色

製品仕様

用   途 乗用
駆動方式 ロープ式
定格速度 10m/min
電   源 単相 100V
モーター容量 550ワット
制御方式 インバーター制御
停止個所 最大4箇所
昇降行程 最大 10m
積載荷重 140kg 2名
かご寸法  120N型 幅900×奥1085×高2000mm
出入口寸法  120N型 幅675×高2000mm
戸構造  2枚戸 内外4枚連動片開き 防犯窓 7mm網入りガラスを使用
戸操作方式 手動式

省エネ・省スペース設計、低価格のホームエレベーター特徴

  • 三友エレベータのホームエレベーター・小型エレベーターは、最大の特徴は築年を経過した木造建築でも設置可能な自立式エレベーターです。
    自立式エレベーターとは建物の強度や構造に依存せず、建物の中に鉄塔を組立てその内部にエレベーターのカゴを吊す方式です。そのため築年数が経った木造住宅や、大手エレベーターメーカーでは設置できない条件でも、弊社の自立式構造ですと家庭用エレベーターを設置することができます。
    建物に負荷をかけることなく、設置することができるので、住宅の補強工事なども必要ありません。

安心・安全でエコロジーな設計の小型・家庭用エレベーター

  • ガイドレール

  • 弊社では、あえて巻胴式を採用せず、高層ビル向けエレベーターと同じ、釣合い重り方式と、モーターのインバーター制御で滑らかな乗り心地を実現させています。規格認定のガイドレールと、8ミリのワイヤーロープ2本掛けの採用で、安心安全設計です。
    和建築に融和した住宅用エレベーターです。柱の間隔・床から基礎面・床から天井までの寸法に無駄なく対応したエコ設計です。 リフォームで小型・家庭用ホームエレベーターの設置をご検討されている方、現地調査を含め敏速に対応させていただきます。

ホームエレベーターと小型エレベーター

ホームエレベーター

個人住宅用のエレベーターです。原則として店舗倉庫などの建物に設置することはできません

小型エレベーター

福祉施設等で高齢者や体の不自由な方、妊婦などの方が建物施設を利用素する際の移動を支援するエレベーターです。

●診療所・産院など
●寺院・教会など
●老人ホーム・身体障がい者ホーム・養護学校や盲・ろう学校など
●保育園や児童福祉施設など
●公民館・寄合所・集会所・会議場など
●レストラン・各種店舗など

ページのトップへ戻る